マリナタウンのマンションのスケルトンリノベーション②図面作成編
こんにちは!
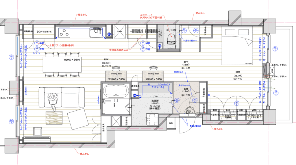
今日は現在進行中のマンションのリノベーションの計画段階の紹介です。
70平米ほどのご自宅でほぼワンルームの平面プランとなりました。

今回の見所は「抜け感」です。約13メートルの抜けのある空間になります。
壁式のキッチンプランにより空間を広く取れることで今回の抜けが成立しています。
この「抜け」に光と風が通り抜けるのでご自宅でお仕事をされるお二人にとってデスクに座っている時の開放感は居心地の良いものになると思います。
照明計画も、今回は天井裏のスペースが確保できないことからブラケット照明やスポットなど使って構成するようにしました。



今月から着工予定ですので、またブログ更新していきます!